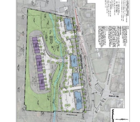
R.P. Farlin, INC. has invited Wasena residents to partake in a virtual meeting regarding the rezoning of 0 Brandon AVE SW. Please see download the pdf below for further information.
Published by Saasation
Another person in this world who really knows nothing and just trying to live the best that I can. View all posts by Saasation
